Mobiele badkamer
9,3/10 (778 beoordelingen) | Alle accomodaties en toiletten
Product omschrijving
Een mobiele badkamer is ideaal te gebruiken wanneer u uw eigen badkamer gaat verbouwen. Tevens toepasbaar op evenementen waar een extra badkamer benodigd is.
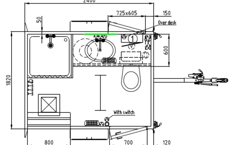
De mobiele badkamer is geplaatst op een enkelassige aanhanger, hierdoor is deze gemakkelijk zelf te vervoeren. Bijna overal te plaatsen door zijn compacte afmetingen. Door middel van de vier uitzetpoten op iedere hoek, kan de badkamer stabiel opgesteld worden.
Let op: er dient een stroomaansluiting 230V, een wateraansluiting en een waterafvoermogelijkheid te zijn!



